EmAura

EmAura

Interjero dizaino sprendimai

Portfolio

Visi projektai →

Horizonto linijos

Techniniai brėžiniai parengti butui Vilniuje, siekiant tiksliai suplanuoti erdvių išdėstymą ir užtikrinti sklandų interjero projekto įgyvendinimą. Sprendiniuose atsispindi funkcionalus planavimas, ergonomikos principai ir estetiškai vientisa gyvenamosios erdvės koncepcija.

Erdvė ir šviesa

Interjeras sukurtas siekiant sukurti šviesią, šiltą ir harmoningą gyvenamąją erdvę, kurioje dera natūralios medžiagos, neutralūs tonai ir subtilūs akcentai. Dideli langai ir švelnus apšvietimas sustiprina erdvės jaukumą bei kuria ramią, subalansuotą atmosferą kasdieniam poilsiui.

svetaine ir valgomasis

Šviesus balansas

Naujos statybos buto interjero projektas, kuriame dominuoja šiuolaikiškas šviesus minimalizmas. Natūralūs atspalviai, medžio tekstūros ir subtilūs kontrastai kuria harmoningą bei jaukią kasdienio gyvenimo erdvę.

Paslaugos

Paketas 1

Techninis interjero projektas

7 / kv.m.

Kas įeina?

  • Funkcinis zonavimas ir baldų išdėstymo planai (keletas skirtingų opcijų)
  • Apšvietimo išdėstymo ir valdymo planai
  • Lubų planas
  • Elektros išdėstymo planas
  • Santechnikos planas

* Kainos gali keistis priklausomai nuo projekto apimties

Populiariausias

Paketas 2

Bazinis interjero projektas

18 / kv.m.

Kas įeina?

  • Planavimas ir koncepcija
  • Techninė interjero dalis (7 pozicijos)
  • Dizainas ir medžiagų parinkimas (8 pozicijos)

* Kainos gali keistis priklausomai nuo projekto apimties

Paketas 3

Pilnas interjero projektas

20 / kv.m.

Kas įeina?

  • Planavimas, koncepcija ir 3D vizualizacijos
  • Techninė interjero dalis (7 pozicijos)
  • Dizainas ir medžiagų parinkimas (8 pozicijos)

* Kainos gali keistis priklausomai nuo projekto apimties

Kontaktai

Kviečiame susisiekti su mumis Jums patogiu būdu – žemiau rasite visus kontaktus. Taip pat galite užpildyti užklausos formą, ir mes su Jumis susisieksime artimiausiu metu.

El. paštas

info@emaura.lt

Telefonas

+370 605 06841

Adresas

Lietuva

Laukiame jūsų žinutės

Siųsti užklausą

Užpildykite formą ir susisieksime su jumis per 24 valandas

Visi projektai

Butas

Horizonto linijos

Namas

Erdvė ir šviesa

svetaine ir valgomasis

Butas

Šviesus balansas

Butas

Horizonto linijos

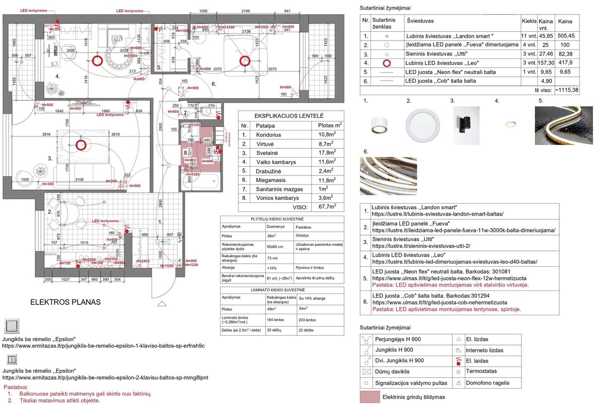
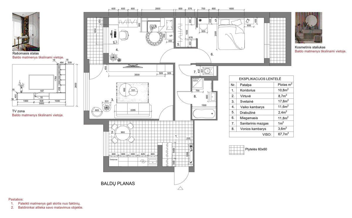
Data 2025.05.17
Plotas 67,7 kv. m.
Tipas Techninis interjero projektas

Aprašymas

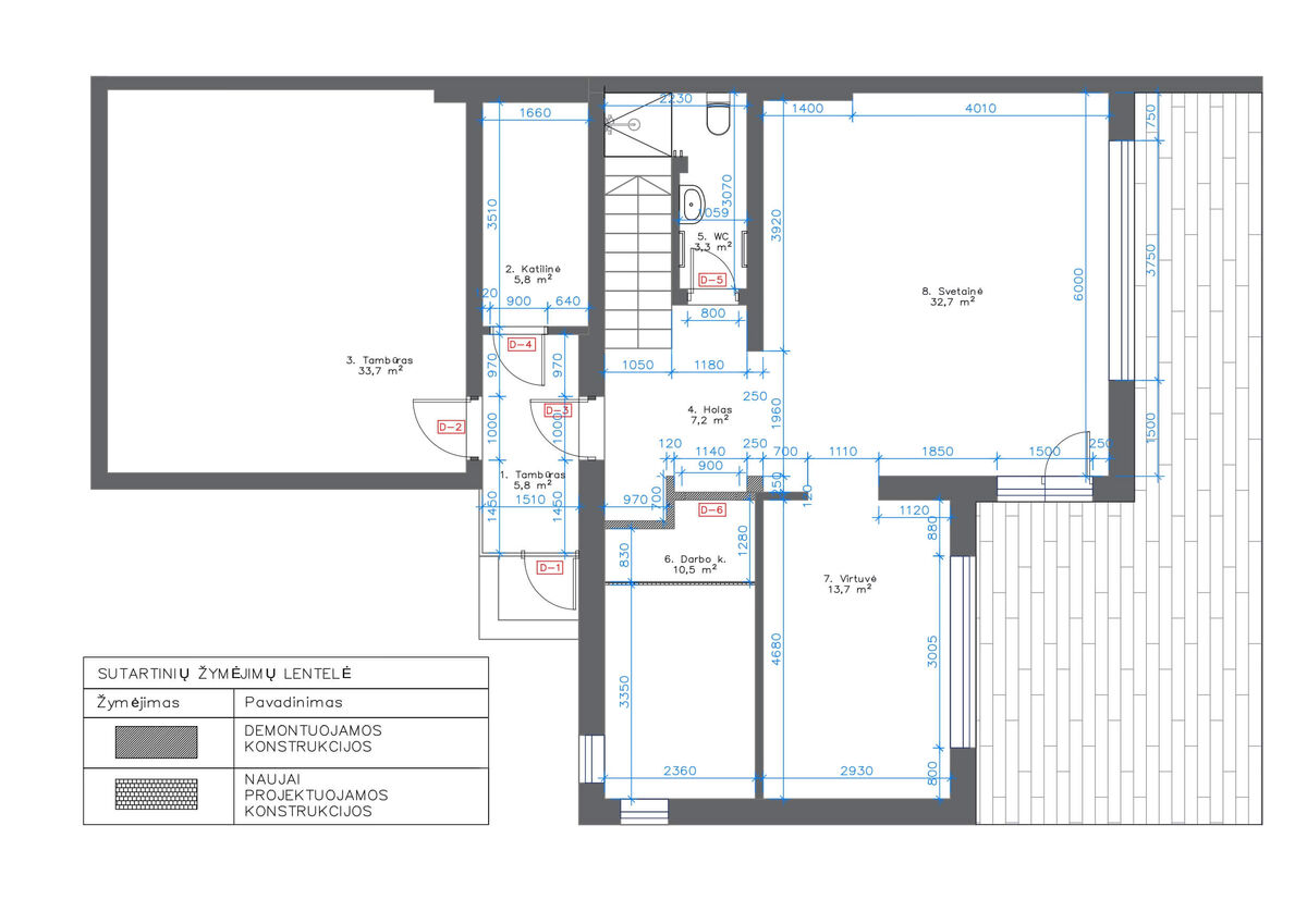
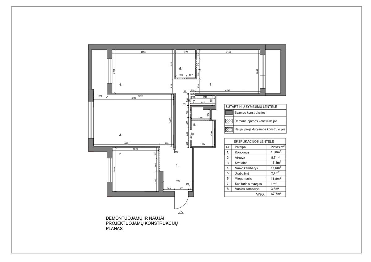
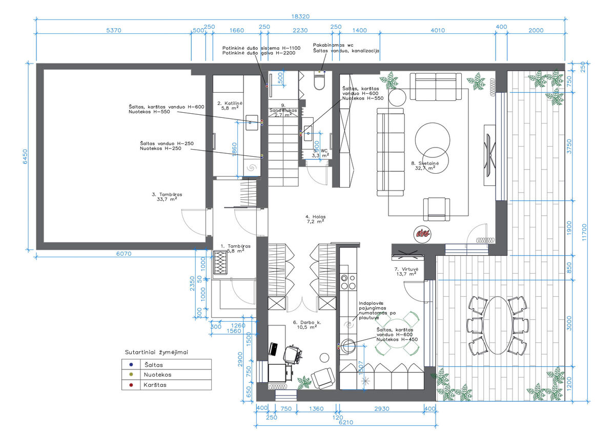
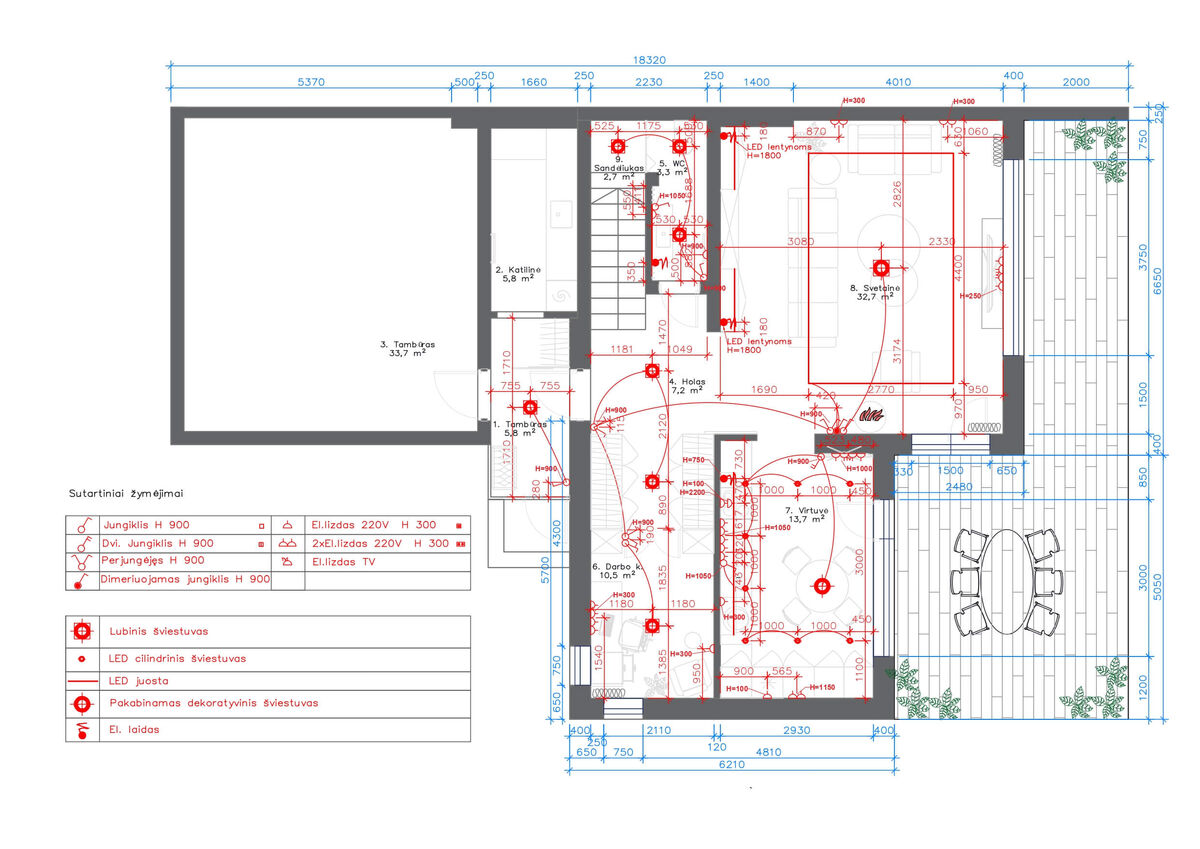
Senos statybos pastato interjero atnaujinimo projektas. Projektavimo metu buvo parengtas demontuojamų ir naujai projektuojamų pertvarų planas, siekiant pagerinti patalpų funkcionalumą ir išplanavimą. Taip pat parengtas funkcionalus baldų išdėstymo planas, elektros planas ir santechnikos planas, užtikrinantys patogų ir racionalų erdvės naudojimą bei sklandų projekto įgyvendinimą. Užsakovo pageidavimai — funkcionali, jauki ir estetiškai vientisa gyvenamoji erdvė, pritaikyta kasdieniams poreikiams.

Projekto eiliškumas

Demontuojamų ir naujai projektuojamų pertvarų planas, baldų išdėstymo planas, santechnikos planas ir elektros instaliacijos planas.

Namas

Erdvė ir šviesa

Data 2025.12.19
Plotas 112,7 kv. m.
Tipas Pilnas interjero projektas

Aprašymas

Senos statybos nuosavo namo interjero atnaujinimo projektas. Užsakovas pateikė pageidaujamą spalvinę gamą ir išreiškė lūkestį sukurti funkcionalią, jaukią ir estetiškai vientisą gyvenamąją erdvę. Projektavimo metu parengtas demontuojamų ir naujai projektuojamų pertvarų planas, funkcionalus baldų išdėstymo planas, taip pat elektros ir santechnikos planai, užtikrinantys racionalų erdvės išnaudojimą ir patogų patalpų naudojimą.

Projekto eiliškumas

Statybinis planas, baldų išdėstymo planas, įvadų planas, elektros instaliacijos planas ir vizualizacijos.

Svetaine ir Valgomasis

Butas

Šviesus balansas

Data 2026.03.13
Plotas 115 kv. m.
Tipas Pilnas interjero projektas

Aprašymas

Naujos statybos 115 kv. m buto interjero projektas. Interjeras formuojamas šiuolaikiško, šviesaus minimalizmo kryptimi, kur dominuoja natūralūs atspalviai, medžio tekstūros ir subtilūs kontrastai. Erdvėje kuriama estetiškai vientisa ir harmoninga atmosfera, derinant funkcionalumą su jaukumu. Minkšti audiniai, šiltos spalvos ir apgalvotos detalės suteikia interjerui lengvumo bei komforto pojūtį, o bendras sprendimas orientuotas į ramų, patogų kasdienį gyvenimą.

Paketas 2

Bazinis interjero projektas

25 € / kv.m.

1. Planavimas ir koncepcija

2. Techninė interjero dalis

3. Dizainas

* Kainos gali keistis priklausomai nuo projekto apimties ir individualių poreikių

Paketas 3

Pilnas interjero projektas

30 € / kv.m.

1. Planavimas ir koncepcija

2. Techninė interjero dalis

3. Dizainas

* Kainos gali keistis priklausomai nuo projekto apimties ir individualių poreikių